Bürogebäude zur alleinigen Nutzung mit Terrasse, beheizbarer Lagerfläche sowie Grünfläche / KFZ- Abstellplätzen

Büro / Praxis , 1230 Wien , Kolpingstraße


EG: Eingangsbereich / Empfang
EG: linker Büroraum
EG: linker Büroraum
EG: rechter Büroraum
EG: rechter Büroraum
EG: 3. Büroraum
EG: 3. Büroraum
EG: 3. Büroraum / Küchenbereich leer bis auf die Anschlüsse
EG: 3. Büroraum / Stauraum
EG: 3. Büroraum / Abstellraum
Diele zu den Nassräumen
EG: Damentoilette mit Handwaschbecken
EG: Herrentoilette mit Pissoir und Handwaschbecken
EG: Abstellraum
EG: Gang zur Lagerfläche und zum Heizraum
EG: Lagerfläche
Zufahrt zur Lagerfläche
Zufahrt zur Lagerfläche
Parkplätzt hinter dem Gebäude
Plan Erdgeschoß
Aufgang zum 1. Stock
1.Stock
1. Stock 1. Büroraum
1. Stock rechter Büroraum
1. Stock rechter Büroraum mit angrenzden Raum
Angrenzender Raum
1. Stock linker Büroraum mir Blick zum Serverraum
Serverraum
1. Stock linker Büroraum
1. Stock 4. Büroraum
1. Stock: Diele zu den Nassräumen
1. Stock: Damentoilette mit Handwaschbecken
1. Stock: Herrentoilette mit Pissoir
1. Stock: 1. Nassraum
1. Stock: 2. Nassraum
1. Stock: Arbeitsraum mit Blick zu Aufnahme / Fotostudio
1. Stock: Aufnahme / Fotostudio
1. Stock: Aufnahme / Fotostudio
1. Stock: Aufenthaltsraum mit Küche
1. Stock: Aufenthaltsraum mit Küche
1. Stock: Durchgang zu den hinteren Großraumflächen und dem Notausgang /Stiegenhaus
1. Stock: Zugang zur 1. Großraumfläche
1. Stock: 1. Großraumfläche
1. Stock: 1. Großraumfläche
1. Stock: Zugang zur 2. Großraumfläche und Blick zum Abstell- Serverraum
Abstell- Serverraum
2. Großraumfläche
2. Großraumfläche
2. Großraumfläche
1. Stock: Abstellraum bei 2. Großraumfläche
Plan 1. Stock
2. Stock
2. Stock: Raum 1
2. Stock: Blick zum Büroraum links
2. Stock: Büroraum links
2. Stock: Blick zum Büroraum rechts
2. Stock: Büroraum rechts
2. Stock: Büroraum rechts klein mit Abstellraum
2. Stock: Abstellraum
2. Stock: Toilette mit Pissoir und Handwaschbecken
2. Stock: Toilette mit Pissoir und Handwaschbecken
2. Stock: Toilette mit Pissoir und Handwaschbecken
2. Stock: Terrasse
2. Stock: Terrasse
2. Stock: Terrasse
sehr große Terrassenfläche
sehr große Terrassenfläche
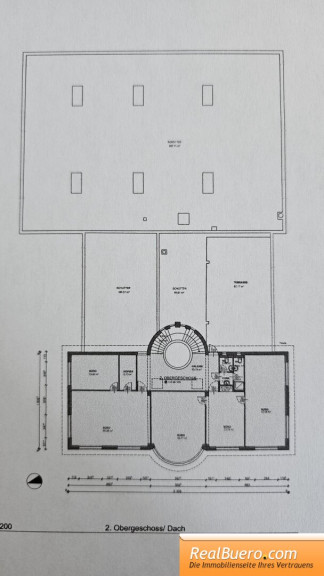
Plan 2. Stock (letzter Stock)
Zugang zur "Hauswartwohnung"
Vorzimmer
Wohnesszimmer
Schlafzimmer
Küche leer bis auf die Anschlüsse
Küche leer bis auf die Anschlüsse
Badezimmer mit Dusche und Handwaschbecken
Toilette
Plan Erdgeschoß
Plan 1. Stock
Plan 2. Stock (letzter Stock)

Beschreibung der Immobilie

Bürogebäude zur alleinigen Nutzung mit Terrasse, beheizbarer Lagerfläche sowie Grünfläche / KFZ- Abstellplätzen

Es können nur schriftliche Anfragen mit vollständigen Kontaktabgaben bearbeitet werden. Bitte lesen Sie als weiteren Schritt, die vom Innendienst erhaltenen Mail. Telefonisch bieten wir keine Besichtigungstermine an. Herzlichen Dank im Voraus.



Objekt auf 3 Ebenen:



  • Erdgeschoß mit Lagerfläche - lt Plan
  • Erdgeschoß separat begehbar eine Hausmeisterwohnung
  • 1. Stock - lt. Plan
  • 2. Stock mit 87 m2 Terrasse - lt. Plan


Sonstiges:



  • unbefristete Hauptmiete
  • der Mieter muss Vorsteuerabzugsberechtigt sein
  • Hauszentralheizung
  • Grünfläche neben dem Haus
  • KFZ Abstellplätze
  • LKW Zufahrt


Die Fotos beginnen im Erdgeschoss und der Lagerfläche und enden nach dem Dachgeschoß mit der Terrasse bei der Hauswartwohnung



Zusatzangebot:



  • bei Interesse wäre vorab auch eine Videopräsentation der 3 Ebenen und der Hauswartwohnung möglich


Monatliche Miete: € 20.326,44  inkl. Bk, Ust.



  • Nettomiete € 13.813,54 (Büro-, Terrasse-, Lager-, Grünfläche)
  • Pauschale für 24 KFZ Abstellplätze inkl. Flächen für Ein- & Durchfahrt: € 1000.-
  • Betriebskosten € 3125,16
  • Umsatzsteuer 20%


Nebenkosten:



  • KEINE Kaution
  • 3 Monatsmieten Provision
  • Finanzamt Vergebührungskosten


Nebenkostenübersicht und weitere Informationen für den Mieter/Vermieter, Pächter/Verpächter finden Sie auf unserer Homepage: www.realbuero.com




Der Vermittler ist als Doppelmakler tätig.

Infrastruktur / Entfernungen

Gesundheit
Arzt <1.750m
Apotheke <1.250m
Klinik <1.750m
Krankenhaus <2.750m

Kinder & Schulen
Schule <1.500m
Kindergarten <750m
Universität <3.750m
Höhere Schule <4.250m

Nahversorgung
Supermarkt <750m
Bäckerei <1.750m
Einkaufszentrum <1.000m

Sonstige
Geldautomat <1.000m
Bank <1.000m
Post <500m
Polizei <1.500m

Verkehr
Bus <250m
U-Bahn <2.250m
Straßenbahn <1.750m
Bahnhof <1.250m
Autobahnanschluss <750m

Angaben Entfernung Luftlinie / Quelle: OpenStreetMap

Eckdaten Objektnr. 4150

Art: Büro / Praxis
Land: Österreich
Baujahr: 1989
Alter: Neubau
Kaltmiete (netto): 13.813,54 €
Kaltmiete: 16.938,70 €
Miete / m²: 6,24 €
Betriebskosten: 2.125,16 €
MwSt Gesamt: 3.387,74 €
Nutzfläche: 2.214,00 m²
Gesamtfläche: 2.915,16 m²
Lagerfläche: 888,00 m²
Bürofläche: 1.237,00 m²
Terrassen: 1
Stellplätze: 24
Garten: 703,00 m²
Nebenkostenübersicht Miete Immobilie merken Exposé

Ausstattung

Zentralheizung, Einbauküche, Kabel/Satelliten-TV, Parkplatz, Rampe


Immobilie anfragen


Ihre persönliche Beratung

RealBuero Sabine Steinecker

Realbüro Sabine Steinecker

T + 43 676 922 63 81