Lichtdurchflutete Dachgeschosswohnung mit 38m2 Terrasse und Fernblick ins Grüne

Wohnung - Dachgeschoß, 3400 Klosterneuburg


Ruhelage in Zentrumsnähe Klosterneuburg - lediglich 20min von der Wiener Innenstadt entfernt.

Beschreibung der Immobilie

Lichtdurchflutete Dachgeschosswohnung mit 38m2 Terrasse und Fernblick ins Grüne

Genießen Sie die gehobene Lebensqualität in Klosterneuburg am Stadtrand des 19. Wiener Bezirks!



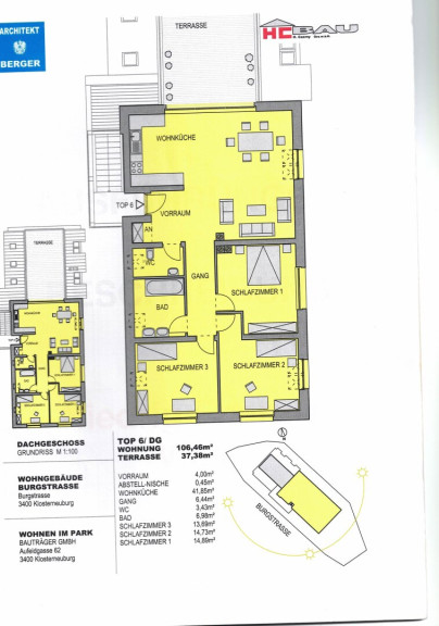
Zum Verkauf gelangt diese südwestseitig gelegene helle und moderne 4-Zimmer-Wohnung mit rund 106m2 Wohnfläche sowie einer rund 38m2 großen Terrasse, welche sich im Dachgeschoss eines charmanten zweistöckigen Wohnhauses in zentrumsnaher, aber dennoch ausgesprochen ruhiger Lage im wunderschönen Klosterneuburg befindet. 



Die Wohnung liegt singulär im 2. Stock wodurch Sie keine Nachbarn nebenan oder darüber haben. Somit genießen Sie in Ihrem neuen Zuhause einerseits herrliche Ruhe und andererseits ein freies Wohngefühl mit Tageslichtfenstern in jedem einzelnen Zimmer. Vom Frühjahr bis zum Herbst erweitern Sie ihren Wohnraum um die großzügige Terrasse mit Blick auf den Buchberg und können Abends das angenehme Rauschen des vorbeifließenden Kierlingbachs genießen. Die Wohnung wurde im August 2024 teilsaniert (ausgemalt und neuer Holzparkettboden) und bietet somit das angenehme Wohngefühl eines Erstbezugs.



Wenn Sie Ihr potenzielles neues Zuhause betreten, gelangen Sie in einen gut geschnittenen Vorraum, über den sämtliche Räume zentral begehbar sind. So gelangen Sie einerseits in die geräumige Wohnküche samt offenem Kamin und hochwertiger Markeneinbauküche über die Sie auch Zugang auf die Terrasse auf gleicher Ebene haben. Auf der anderen Seite des Eingangsbereichs gelangen Sie in die drei geschützt gelegenen Zimmer, das Badezimmer sowie das separate WC. Sämtliche Wohnräume verfügen zudem über großzügige Fenster, wodurch die Wohnung mit natürlichem Licht durchflutet wird. Vom Wohnzimmer und vom Schlafzimmer aus genießen Sie einen Blick direkt auf das historische Stift Klosterneuburg. Zur Wohnung zugehörig und im Preis inkludiert ist ein Kfz-Abstellplatz direkt vor dem Haus sowie ein 7m2 geräumiges und trockenes Kellerabteil.



Die Wohnung in der Burgstraße zeichnet sich außerdem durch eine äußerst zentrale aber dennoch ruhige Lage aus. Der Stadtkern mit sämtlichen Geschäften des täglichen Bedarfs ist in wenigen Minuten zu Fuß erreichbar, ebenso wie der Niedermarkt als zentraler Angelpunkt des öffentlichen Verkehrs nach Wien, als auch innerhalb Klosterneuburgs. Auch die vielseitigen Freizeitgestaltungsmöglichkeiten Klosterneuburgs wie die Donauauen oder das Strandbad sind auch fußläufig erreichbar. Trotz des entspannenden und idyllischen Vorstadtflairs gelangt man in nur rund 20 Minuten mit dem Auto in die Wiener Innenstadt. Zur Anlage zugehörig ist eine rund 460m2 große Grünfläche zur gemeinschaftlichen Nutzung direkt am naturbelassenen Kierlingbach. Da es sich bei dieser Immobilie um ein Wohngebäude mit lediglich 2 Stockwerken handelt gibt es keinen kosten- und wartungsintensiven Lift im Haus.



Der guten Ordnung halber dürfen wir dürfen darauf hinweisen, dass sich der für Klosterneuburg ausserordentlich günstige Kaufpreis/m2 dadurch ergibt, dass es sich bei dem Gebäude um ein auf Baurechtsgrund errichtetes handelt. Das heißt Sie erwerben Wohnungseigentum am Wohnungseigentumsobjekt Top 6 samt Zubehörobjekte Terrasse und Kfz-Stellplatz 6, nicht jedoch am Grund. Der Pachtvertrag für den Baurechtsgrund läuft noch 82 Jahre mit Option auf Verlängerung um 99 Jahre, der monatliche Baurechtszins liegt bei rund €346,- monatlich. Der Kaufpreis von €499.000,- ist ein Fixpreis und kann nicht verhandelt werden.



Wir stehen Ihnen für weitere Informationen, sowie bezüglich eines Termines zur Besichtigung unter der Telefonnummer 0664-8171051 Herr Mag. Mario Zenaty gerne zur Verfügung.



Besichtigungen und Auskünfte sind selbstverständlich unverbindlich und kostenlos. Oben angeführte Angaben basieren auf Informationen und Unterlagen des Eigentümers und sind unsererseits ohne Gewähr. Wir dürfen gem. § 5 Maklergesetz darauf hinweisen, dass wir als Doppelmakler tätig sind.




Wir weisen darauf hin, dass zwischen dem Vermittler und dem zu vermittelnden Dritten ein familiäres oder wirtschaftliches Naheverhältnis besteht.


Der Vermittler ist als Doppelmakler tätig.

Eckdaten Objektnr. 6352/1977

Art: Wohnung - Dachgeschoß
Land: Österreich
Baujahr: 2008
Alter: Neubau
Kaufpreis: 499.000,00
Betriebskosten: 293,00 €
MwSt Gesamt: 29,30 €
Wohnfläche: 106,46 m²
Zimmer: 4
Bäder: 1
WC: 1
Terrassen: 1
Stellplätze: 1
Keller: 7,00 m²
Heizwärmebedarf:  B  43,90 kWh/m²a
fGEE:  C  1,26
Nebenkostenübersicht Kauf Immobilie merken Exposé

Ausstattung

Parkett, Wohnküche / offene Küche, Bad mit Fenster, Badewanne, Parkplatz


Immobilie anfragen


Ihre persönliche Beratung

AURELIUM REAL ESTATE GmbH

Mag. Mario Zenaty

AURELIUM REAL ESTATE GmbH

T +43 664 8171051