Modernes Wohnen mit Panoramablick – Exklusives Projekt in Brunn am Gebirge
Wohnung
,
2345
Brunn am Gebirge
,
Liechtensteinstraße
Beschreibung der Immobilie
Modernes Wohnen mit Panoramablick – Exklusives Projekt in Brunn am Gebirge
Elegantes Wohnen in Brunn am Gebirge – Liechtensteinstraße
Willkommen in einem Wohntraum, der modernes Design, hohe Bauqualität und naturnahe Ruhe vereint. In der Liechtensteinstraße, am Rande der idyllischen Stadt Brunn am Gebirge, erwartet Sie eine außergewöhnliche Wohnanlage, die keine Wünsche offen lässt. Dieses exklusive Projekt besteht aus zwei Bauteilen und bietet insgesamt 11 Wohneinheiten, die höchsten Komfort und stilvolles Wohnen versprechen.
Wohnen mit Weitblick - Bauteil 1
Im ersten Bauteil finden sich 9 hochwertige Wohnungen, die durch ihre durchdachte Raumaufteilung und großzügigen Außenflächen bestechen. Besonders die oberen Etagen bieten einen atemberaubenden Blick über die Dächer von Brunn bis hin zur Skyline der nahen Stadt Wien. Die Wohnflächen variieren zwischen 85m² und 188m², sodass Sie hier mit Sicherheit die ideale Größe für Ihre individuellen Wohnbedürfnisse finden.
Exklusive Townhäuser - Bauteil 2
Der zweite Bauteil beherbergt zwei exklusive Townhäuser, die sich durch ihre großzügigen Flächen, privaten Gärten und luxuriöse Ausstattung auszeichnen. Hier genießen Sie das Gefühl eines eigenen Hauses mit allen Annehmlichkeiten, die eine hochwertige Wohnanlage bietet.
Das Projekt im Überblick
- 11 Wohneinheiten
- 2 exklusive Townhäuser
- Wohnflächen zwischen 85m² und 188m²
- 3-4 Zimmer
- alle Wohnungen mit privater Freifläche wie Garten, Balkon, Terrasse oder Loggia
- hauseigene Garage
- Fahrradraum und Einlagerungsräume für jede Wohnung
Höchste Bauqualität und erstklassige Ausstattung
Die Liegenschaft vereint nicht nur architektonische Eleganz, sondern setzt auch in puncto Ausstattung auf höchste Standards. Große Fenster mit Dreifachverglasung lassen viel Licht in die Wohnungen und sorgen für eine angenehme Wohnatmosphäre. Raffstores bieten flexiblen Sonnenschutz und Privatsphäre. In den Wohnräumen sorgen edle Parkettböden für eine warme, wohnliche Atmosphäre, während die Bäder mit großformatigen Feinsteinzeugfliesen modern und stilvoll gestaltet sind.
Für angenehme Temperaturen zu jeder Jahreszeit sorgt eine innovative Haustechnik: Eine Luftwärmepumpe liefert umweltfreundliche Wärme, die Fußbodenheizung sorgt für wohlige Behaglichkeit und durch die Bauteilaktivierung wird eine angenehme Deckenkühlung gewährleistet.
Ausstattung
- große Fenster mit Dreifachverglasung und Raffstores
- Parkettböden in den Wohnräumen
- großformatigen Feinsteinzeugfliesen in den Nassräumen
- Fußbodenheizung mittels Luftwärmepumpe
Lage und Umgebung – Wohnen in Brunn am Gebirge
Die Liechtensteinstraße liegt in einer ruhigen und dennoch hervorragend angebundenen Lage in Brunn am Gebirge, einer charmanten Gemeinde im südlichen Umland von Wien. Die Lage zeichnet sich durch ihre perfekte Balance zwischen Stadtleben und Natur aus. Innerhalb weniger Minuten erreichen Sie die malerischen Weinberge und Wanderwege des Wienerwalds, die zu erholsamen Spaziergängen oder sportlichen Aktivitäten einladen.
Brunn am Gebirge selbst bietet eine ausgezeichnete Infrastruktur: Einkaufsmöglichkeiten, Schulen, Kindergärten und medizinische Versorgung sind in unmittelbarer Nähe vorhanden. Das Ortszentrum mit seinen charmanten Cafés, Restaurants und Geschäften ist nur einen Steinwurf entfernt.
Die verkehrstechnische Anbindung ist ideal: Mit dem Auto gelangen Sie in nur 20 Minuten ins Wiener Stadtzentrum. Die nahegelegene Autobahn A21 sowie die S-Bahn-Anbindung machen die Liegenschaft zu einem optimalen Ausgangspunkt für Pendler. Gleichzeitig genießen Sie die Ruhe und Beschaulichkeit einer grünen Umgebung.
Fazit
Die Liegenschaft in der Liechtensteinstraße bietet ein modernes, luxuriöses Zuhause in einer der begehrtesten Lagen von Brunn am Gebirge. Ob Sie sich für eine der lichtdurchfluteten Wohnungen mit Panoramablick oder für eines der großzügigen Townhäuser entscheiden – hier finden Sie ein Wohnkonzept, das höchsten Ansprüchen gerecht wird.
Lassen Sie sich von diesem einzigartigen Projekt begeistern und genießen Sie das Beste aus zwei Welten: die Nähe zur pulsierenden Stadt und die Ruhe einer naturnahen Umgebung.
Provisionsfrei für den Kunden!
Bezugsfertig!
Wir weisen darauf hin, dass zwischen dem Vermittler und dem zu vermittelnden Dritten ein familiäres oder wirtschaftliches Naheverhältnis besteht.
Der Vermittler ist als Doppelmakler tätig.
Infrastruktur / Entfernungen
Gesundheit
Arzt <250m
Apotheke <1.000m
Klinik <3.000m
Krankenhaus <2.500m
Kinder & Schulen
Schule <750m
Kindergarten <500m
Universität <8.750m
Höhere Schule <4.000m
Nahversorgung
Supermarkt <750m
Bäckerei <250m
Einkaufszentrum <2.750m
Sonstige
Bank <750m
Geldautomat <750m
Post <750m
Polizei <750m
Verkehr
Bus <250m
U-Bahn <3.500m
Straßenbahn <3.000m
Bahnhof <1.000m
Autobahnanschluss <1.500m
Angaben Entfernung Luftlinie / Quelle: OpenStreetMap
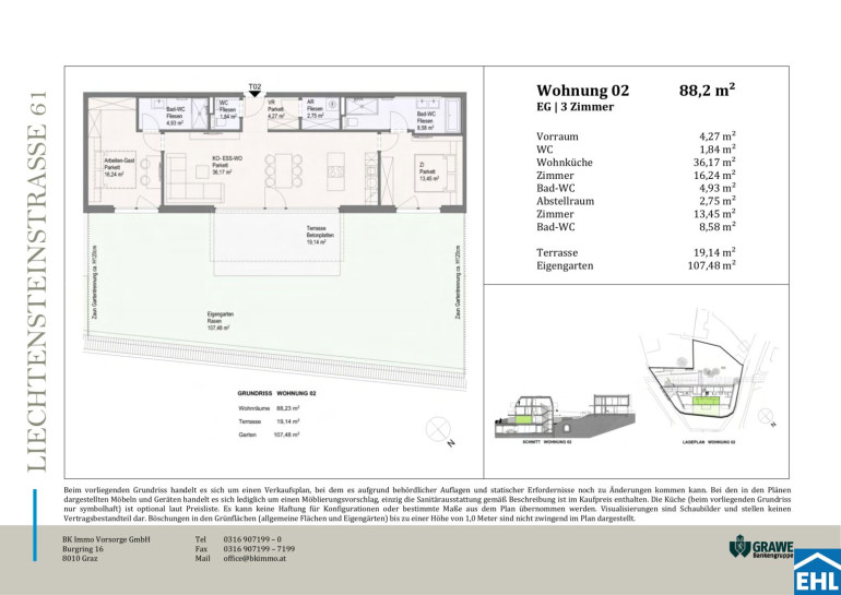
Eckdaten Objektnr. 79884
| Art: | Wohnung |
| Land: | Österreich |
| Baujahr: | 2025 |
| Zustand: | Erstbezug |
| Alter: | Neubau |
| Kaufpreis: | 685.000,00 € |
| Betriebskosten: | 125,75 € |
| Heizkosten: | 30,30 € |
| MwSt Gesamt: | 17,63 € |
| Wohnfläche: | 88,23 m² |
| Zimmer: | 3 |
| Bäder: | 2 |
| WC: | 2 |
| Terrassen: | 1 |
| Garten: | 107,48 m² |
| Heizwärmebedarf: | B 42,50 kWh/m²a |
| fGEE: | A 0,75 |
Ausstattung
Fliesen, Parkett, Fußbodenheizung, Wohnküche / offene Küche, Personenaufzug, Badewanne, Dusche
Ihre persönliche Beratung
Dieser Makler ist ein offizielles Mitglied des IR – ir.at Mehr Erfahren
