Beschreibung der Immobilie
Neues Wohnhaus in Ybbs an der Donau
Wir freuen uns, Ihnen dieses tolle Einfamilienwohnhaus in belagsfertiger Ausführung vorstellen zu dürfen. Dieses Haus ist Teil der exklusiven Hofwohnhausanlage Ybbs an der Donau, welche aus 4 frei stehenden Häusern (Top 8 ist bereits verkauft) und 7 Reihenhauseinheiten besteht.
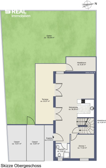
Diese Immobilie vereint eine attraktive Lage mit modernem Wohnkomfort und einer Vielzahl an hochwertigen Ausstattungsmerkmalen. Lassen Sie sich von der großzügigen Raumaufteilung, der südwestlich ausgerichteten
Terrasse und der Gartenfläche begeistern. Hier finden Sie Ihr neues Zuhause, das keine Wünsche offenlässt.
Gegen einen Aufpreis von € 25.000,00 kann dieses Haus auch in schlüsselfertiger Ausführung (inkl. Küchenmöblierung) erworben werden.
Das Herzstück des Hauses bildet das geräumige Wohn-Esszimmer mit offener Küche, das zu geselligen Stunden mit Familie und Freunden einlädt. Die nach Südwesten ausgerichtete Terrasse ist der ideale Ort, um sonnige Nachmittage und laue Abende im Freien zu genießen. Das Gartengrundstück bietet Raum für Erholung und diverse Freizeitgestaltungen.
Ein besonderes Highlight des Hauses ist die Kombination aus moderner Technik und hochwertigen Materialien. Im gesamten Haus sorgen elektrische Rollläden für optimalen Sonnenschutz und damit für angenehmen Wohnkomfort. Eine durch eine Luftwärmepumpe erwärmte Fußbodenheizung gewährleistet ein behagliches Wohnklima und nachhaltige Energieeffizienz. Weiters sind eine eigene SAT-TV-Anlage, sowie eine gemeinsame Photovoltaikanlage vorhanden. Ein Glasfaserkabelanschluss ist problemlos möglich, da sich die Versorgungsleitung bereits auf dem allgemeinen Grundstück befindet. Für Ihre Fahrzeuge stehen zwei überdachte Stellplätze (Carport) zur Verfügung.
Die Anbindung an die A1 Westautobahn (Anschlussstelle Ybbs an der Donau) gewährleistet eine hervorragende Verkehrsanbindung.
Hier genießen Sie eine ruhige Wohnlage bei gleichzeitig sehr guter Infrastruktur und Erreichbarkeit aller wichtigen Einrichtungen.
Das Projekt steht kurz vor der Baufertigstellung und daher ist ein Erstbezug demnächst möglich. Wir laden Sie herzlich ein, sich selbst ein Bild von dieser attraktiven Immobilie zu machen.
Für Besichtigungstermine und weitere Informationen stehen wir Ihnen jederzeit gerne zur Verfügung. Vereinbaren Sie noch heute einen Termin und entdecken Sie Ihr neues Zuhause in Ybbs an der Donau.
Selbstverständlich können Sie nach Erwerb dieses Hauses noch um ein günstiges Wohnbauförderungsdarlehen beim Land NÖ ansuchen. Ein kompetenter Finanzierungsberater der Sparkasse Amstetten AG unterstützt Sie gerne bei Finanzierungsfragen.
Wir freuen uns auf Ihre Anfrage!
Wir ersuchen um Verständnis, dass wir aufgrund der Nachweispflicht gegenüber dem Eigentümer nur Anfragen mit vollständiger Angabe Ihrer Daten (Name, Postanschrift, Telefonnummer und E-Mail-Adresse) bearbeiten können.
Hier sehen Sie einen 360° Rundgang des in der Zwischenzeit schlüsselfertigen Reihenhauses Top 2: https://app.immoviewer.com/portal/tour/3104832?accessKey=6797
Viele weitere Rundgänge, so wie alle neuen s REAL Immobilienangebote finden Sie auf www.sreal.at.
Infrastruktur / Entfernungen
Gesundheit
Arzt <1.000m
Apotheke <1.500m
Krankenhaus <2.000m
Kinder & Schulen
Schule <1.500m
Kindergarten <1.000m
Universität <5.500m
Nahversorgung
Supermarkt <1.000m
Bäckerei <1.000m
Einkaufszentrum <1.000m
Sonstige
Bank <1.500m
Post <1.000m
Geldautomat <1.500m
Polizei <1.000m
Verkehr
Bus <500m
Autobahnanschluss <2.500m
Bahnhof <2.000m
Angaben Entfernung Luftlinie / Quelle: OpenStreetMap
Eckdaten Objektnr. 960/69349
| Art: | Haus - Einfamilienhaus |
| Land: | Österreich |
| Baujahr: | 2024 |
| Zustand: | Erstbezug |
| Alter: | Neubau |
| Kaufpreis: | 392.130,00 € |
| Wohnfläche: | 117,39 m² |
| Zimmer: | 5 |
| Bäder: | 2 |
| WC: | 2 |
| Terrassen: | 1 |
| Stellplätze: | 2 |
| Garten: | 130,08 m² |
| Heizwärmebedarf: | B 38,33 kWh/m²a |
| fGEE: | A+ 0,61 |
Ausstattung
Fußbodenheizung, Bad mit Fenster, Badewanne, Dusche, Kabel/Satelliten-TV, Carport
Ihre persönliche Beratung
Dieser Makler ist ein offizielles Mitglied des IR – ir.at Mehr Erfahren

