Attraktives Altbaubüro in der Galleria

Büro / Praxis , 1030 Wien


Beschreibung der Immobilie

Attraktives Altbaubüro in der Galleria

In der Landstraßer Hauptstraße gelangt diese Büroeinheit im Büro- und Einkaufszentrum Galleria zur Vermietung. Die Einheit liegt im 1. Stock und ist zu den großzügigen begrünten Innenhöfen orientiert.

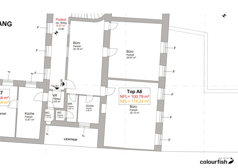
Der aktuelle Grundriss gliedert sich in zwei große Büroräume, und einen großzügigen Empfangsbereich, Teeküche und getrennte Sanitäreinheiten. Eine Sanierung der Oberflächen ist in Absprache mit dem Mieter vor Übergabe möglich. Das Büro ist über einem Aufzug und wenige Stufen erreichbar.



Das Einkaufszentrum Galleria besteht aus 3 Ebenen mit ca. 14.500 m² Geschäftsfläche mit einem sehr attraktiven Branchenmix und einer hauseigenen Tiefgarage. 



verfügbare Fläche/Konditionen:
1.OG: Top A6 - ca. 101 m² - netto € 13,00/m²/Monat

Betriebskosten: netto € 4,70/m²/Monat



zusätzlich verfügbare Flächen/Konditionen:
EG: Top A5 - ca. 117 m² - netto € 15,00/m²/Monat

Betriebskosten: netto € 4,70/m²/Monat



Alle Preise zzg. 20% USt.



Ausstattung



  • Teeküche
  • Bürobeleuchtung
  • Parkettboden
  • getrennte Sanitäreinheiten
  • Gasetagenheizung



PKW-Stellplatz: je nach Verfügbarkeit zu netto € 150,00/Monat



Alle Preisangaben verstehen sich zzgl. USt.



Öffentliche Verkehrsanbindung:
U-Bahn: U3

Bus: 4A, 74A, 77A



Individualverkehr:
Autobahnanbindung A23, A4

Straßenanbindung B1, B221, B227

Flughafen Wien in ca. 15. Minuten erreichbar

Wien Zentrum in wenigen Minuten erreichbar


Wir weisen darauf hin, dass zwischen dem Vermittler und dem zu vermittelnden Dritten ein familiäres oder wirtschaftliches Naheverhältnis besteht.

Infrastruktur / Entfernungen

Gesundheit
Arzt <500m
Apotheke <500m
Klinik <500m
Krankenhaus <500m

Kinder & Schulen
Schule <500m
Kindergarten <500m
Universität <1.000m
Höhere Schule <500m

Nahversorgung
Supermarkt <500m
Bäckerei <500m
Einkaufszentrum <500m

Sonstige
Geldautomat <500m
Bank <500m
Post <500m
Polizei <500m

Verkehr
Bus <500m
U-Bahn <500m
Straßenbahn <1.000m
Bahnhof <500m
Autobahnanschluss <1.500m

Angaben Entfernung Luftlinie / Quelle: OpenStreetMap

Eckdaten Objektnr. 7014

Art: Büro / Praxis
Land: Österreich
Alter: Altbau
Kaltmiete (netto): 1.313,00 €
Kaltmiete: 1.787,70 €
Miete / m²: 13,00 €
Betriebskosten: 474,70 €
MwSt Gesamt: 357,54 €
Nutzfläche: 101,00 m²
Heizwärmebedarf:  D  120,50 kWh/m²a
fGEE:  C  1,60
Nebenkostenübersicht Miete Immobilie merken Exposé

Ausstattung

Parkett, Etagenheizung, Tiefgarage, Teeküche


Immobilie anfragen


Ihre persönliche Beratung

Colourfish Real Estate Immobilienmakler GmbH

Florian Rainer

Colourfish Real Estate Immobilienmakler GmbH

T +43 664 930 40 909

H +43 664 930 40 909