Nachhaltiges Wohnen am Mörikeweg dank effizientem Energiekonzept mit Deckentemperierung

Wohnung , 4020 Linz , Mörikeweg


Die Wohnungen am Mörikeweg bieten ruhiges Wohnen im Grünen mit Nahversorgern, Schulen, Ärzten und Öffis in Gehdistanz. Innenstadt, PlusCity und Autobahn sind schnell erreichbar – ideal angebunden, rundum versorgt.

Beschreibung der Immobilie

Nachhaltiges Wohnen am Mörikeweg dank effizientem Energiekonzept mit Deckentemperierung



Smart wohnen mit grünem Gewissen



Am Mörikeweg trifft nachhaltige Technik auf modernes Design: Wohnungen zwischen 53,73 m² und 96,75 m² mit Balkon, Garten oder Dachterrasse, smarte Energie durch PV, Wärmepumpe und Deckenkühlung – komfortabel, klimafreundlich und zukunftssicher.



Mit Tiefgarage und E-Lade-Vorbereitung startklar für morgen.

Alle Daten zu dieser Wohnung auf einen Blick:



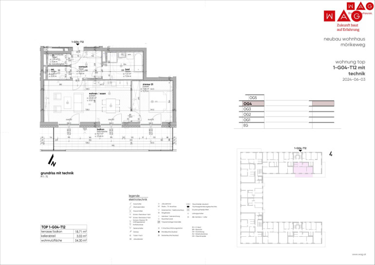
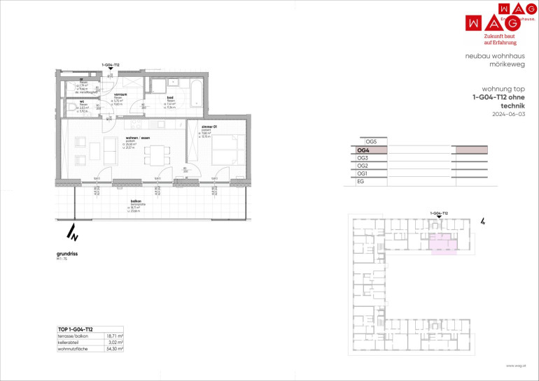
  • Wohnfläche ca. 54,30 m² und 18,71 m² Balkon
  • 1 geräumiges Schlafzimmer mit Zugang auf den Balkon
  • heller Wohn - Ess - Küchenbereich mit Zugang zum Balkon
  • Badezimmer mit Wanne und Dusche sowie Waschbecken
  • WC mit Handwaschbecken
  • Abstellraum
  • Kellerabteil
  • Fixpreisgarantie
  • Barrierefreiheit
  • elektrische Raffstores mit Fernbedienung


Kaufpreis Wohnung: € 355.440,00 (Beachten Sie unser beigefügtes Finanzierungsangebot)

Kaufpreis Tiefgaragenplatz: € 27.500,00


Monatliche Kosten für die Wohnung inkl. Instandhaltungsbeitrag, Betriebskosten, Aufzug, Verwaltungskosten, Kabel-TV und Ust. ca. € 219,97

Monatliche Heizkostenpauschale inkl. Ust.: ca. € 39,10

Monatliche Kosten für den Tiefgaragenstellplatz inkl. Instandhaltungsbeitrag, Betriebskosten, Verwaltungskosten und Ust. ca. € 30,60



Bei diesen Positionen handelt es sich größtenteils um Akonto Zahlungen und diese werden daher jährlich nach tatsächlichen Aufwand/Verbrauch mittels Jahresabrechnung abgerechnet.





Für weitere Informationen stehen Ihnen Frau Eder und Frau Sonntagbauer unter 050 338-6018 oder team.verkauf3@wag.at gerne zur Verfügung!



Sie sind an weiteren Wohnungs- bzw. Gewerbeangeboten interessiert? Ein vielfältiges Angebot finden Sie auf unserer Website.

Zur WAG-Immobiliensuche: SUCHE

Zur WAG-Wohnungsanmeldung: Wohnungsanmeldung

Gerne beraten wir Sie persönlich über unser vielfältiges Angebot, rufen Sie uns einfach an! Und das natürlich ohne Vermittlungsgebühren und provisionsfrei!

Angaben sind ohne Gewähr auf Richtigkeit und Vollständigkeit. Druckfehler vorbehalten.

Infrastruktur / Entfernungen

Gesundheit
Arzt <250m
Apotheke <500m
Klinik <2.750m
Krankenhaus <1.500m

Kinder & Schulen
Kindergarten <750m
Schule <750m
Universität <2.250m
Höhere Schule <4.000m

Nahversorgung
Supermarkt <500m
Bäckerei <250m
Einkaufszentrum <1.000m

Sonstige
Bank <250m
Geldautomat <250m
Post <500m
Polizei <2.000m

Verkehr
Bus <250m
Straßenbahn <1.750m
Bahnhof <1.500m
Autobahnanschluss <250m
Flughafen <4.500m

Angaben Entfernung Luftlinie / Quelle: OpenStreetMap

Eckdaten Objektnr. 6650/27976

Art: Wohnung
Land: Österreich
Baujahr: 2025
Zustand: Erstbezug
Alter: Neubau
Kaufpreis: 355.440,00
Betriebskosten: 114,08 €
MwSt Gesamt: 17,04 €
Wohnfläche: 54,30 m²
Zimmer: 2
Bäder: 1
WC: 1
Balkone: 1
Keller: 3,02 m²
Heizwärmebedarf: 35,00 kWh/m²a
fGEE: 0,69
Nebenkostenübersicht Kauf Immobilie merken Exposé

Ausstattung

Parkett, Fliesen, Solarenergie, Erdwärme, Fernwärme, Fußbodenheizung, Personenaufzug, Ostbalkon, Badewanne, Dusche, Kabel/Satelliten-TV, Tiefgarage, Wasch/Trockenraum


Immobilie anfragen


Ihre persönliche Beratung

Beratung und Verkauf

WAG Wohnungsanlagen GmbH

T +43 (0)50338-6018 / +43 (0)664/88129961

H +43 664 88129961