Großstadt-Charme zum Schnäppchenpreis: Renovierungsbedürftige Altbauwohnung in zentraler Lage!

Wohnung - Etage, 1150 Wien


- In unmittelbarer Umgebung gibt es eine gute Infrastruktur mit verschiedenen Einkaufsmöglichkeiten, Bildungseinrichtungen, Gesundheitsdienstleistungen und öffentlichen Verkehrsmitteln. - Die Umgebung ist geprägt von gepflegten Grünflächen und bietet auch zahlreiche Freizeitmöglichkeiten

Beschreibung der Immobilie

Großstadt-Charme zum Schnäppchenpreis: Renovierungsbedürftige Altbauwohnung in zentraler Lage!

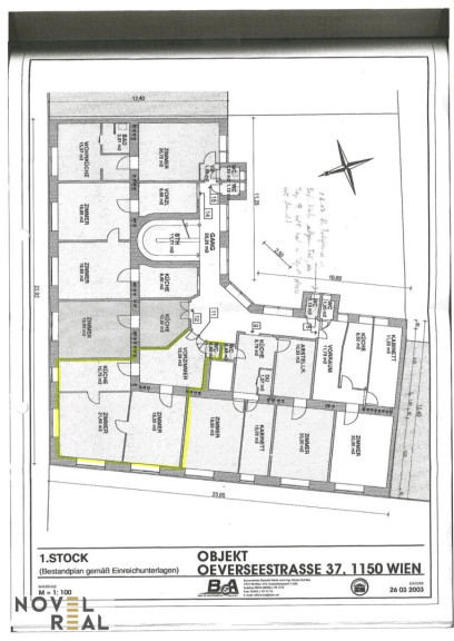
Die Wohnung befindet sich im 1. Stock eines Mehrfamilienhauses in einer ruhigen Wohngegend im 15. Wiener Gemeindebezirk, in der Nähe des Stadtzentrums. 



Die Altbauwohnung verfügt über 3 Zimmer, eines davon ein Kabinett, eine Einbauküche, ein helles Wohnzimmer und Schlafzimmer. Sie bietet viel Potenzial, um nach eigenen Vorstellungen renoviert und gestaltet zu werden. Bitte beachten Sie, dass Renovierungsarbeiten erforderlich sind, um den Charme dieser Wohnung wiederherzustellen.





Raumaufteilung



- helles Wohnzimmer



- geräumiges Schlafzimmer



- separate Küche



- Kabinett



- Badezimmer



- WC



Lage



- In unmittelbarer Umgebung gibt es eine gute Infrastruktur mit verschiedenen Einkaufsmöglichkeiten, Bildungseinrichtungen, Gesundheitsdienstleistungen und öffentlichen Verkehrsmitteln.

- Die Umgebung ist geprägt von gepflegten Grünflächen und bietet auch zahlreiche Freizeitmöglichkeiten





Für die Vereinbarung eines Termins kontaktieren Sie Frau Vassilena Valkova telefonisch unter +43 650 58 70 011 oder per E-Mail: vv@novel-real.at.



Alle Angaben basieren alleinig auf Informationen, die uns von unserem Auftraggeber übermittelt wurden. Trotz aller Sorgfalt können wir für die Richtigkeit, Vollständigkeit und Aktualität dieser Angaben keine Gewähr übernehmen. Jegliche Weitergabe der übermittelten Daten an Dritte ist nicht gestattet. Der Maklervertrag kommt durch schriftliche Vereinbarung oder Inanspruchnahme unserer Maklertätigkeit zustande. Der Makler kann als Doppelmakler tätig werden. Sollte das von uns nachgewiesene Objekt bereits bekannt sein, teilen sie uns dies bitte unverzüglich mit.





Die Maklergebühr ist ausschließlich bei Zustandekommen eines gültigen Rechtsgeschäfts fällig und vom Mieter an Novel Real Immobilien GmbH zu zahlen. Es wird ausdrücklich auf die Nebenkostenübersicht hingewiesen. Bei den Visualisierungen und Abbildungen der Immobilie (insbesondere von Inneneinrichtungen) kann es sich um Symbolfotos bzw. fototechnisch optimierte Fotos handeln.





Hiermit weisen wir auf das Bestehen eines familiären und/oder wirtschaftlichen Naheverhältnisses zum Vermieter hin.


Wir weisen darauf hin, dass zwischen dem Vermittler und dem zu vermittelnden Dritten ein familiäres oder wirtschaftliches Naheverhältnis besteht.


Der Vermittler ist als Doppelmakler tätig.

Infrastruktur / Entfernungen

Gesundheit
Arzt <500m
Apotheke <500m
Klinik <1.000m
Krankenhaus <2.000m

Kinder & Schulen
Schule <500m
Kindergarten <500m
Universität <500m
Höhere Schule <1.000m

Nahversorgung
Supermarkt <500m
Bäckerei <500m
Einkaufszentrum <500m

Sonstige
Geldautomat <500m
Bank <500m
Post <500m
Polizei <500m

Verkehr
Bus <500m
U-Bahn <500m
Straßenbahn <500m
Bahnhof <500m
Autobahnanschluss <5.000m

Angaben Entfernung Luftlinie / Quelle: OpenStreetMap

Eckdaten Objektnr. 5665

Art: Wohnung - Etage
Land: Österreich
Zustand: Teil_vollrenovierungsbed
Alter: Altbau
Kaufpreis: 249.000,00
Betriebskosten: 85,65 €
MwSt Gesamt: 9,07 €
Wohnfläche: 65,96 m²
Nutzfläche: 65,96 m²
Zimmer: 2,50
Bäder: 1
WC: 1
Keller: 2,29 m²
Heizwärmebedarf:  D  123,40 kWh/m²a
fGEE:  D  2,18
Nebenkostenübersicht Kauf Immobilie merken Exposé

Ausstattung

Laminatboden, Etagenheizung, Einbauküche, Personenaufzug, Dusche


Immobilie anfragen


Ihre persönliche Beratung

Novel Real Immobilien GmbH

Vassilena Valkova

Novel Real Immobilien GmbH

T +43 1 361 40140

H +43 650 5870011