Willkommen in Eisenstadt: Hier beginnt Ihr neues Kapitel

Wohnung - Terrassenwohnung, 7000 Eisenstadt , Sankt-Antoni-Straße


Optimale Lage in Eisenstadt: Nahe dem Domplatz, Schlosspark und Fußgängerzone

Beschreibung der Immobilie

Willkommen in Eisenstadt: Hier beginnt Ihr neues Kapitel

Zum Objekt



Willkommen in dieser exklusiven Wohnanlage im Herzen der Stadt, mit 8 einzigartigen Wohneinheiten, von denen bereits 3 ihre neuen Liebhaber gefunden haben. Zudem bieten zwei Wohnungen prächtige Dachterrassen mit einem malerischen Blick über die Eisenstädter-Dachlandschaft. Die Fassade wurde vor Kurzem renoviert, um das äußere Erscheinungsbild zu modernisieren und zu erfrischen. Für Ihre geschätzten Fahrzeuge stehen überdachte Stellplätze zur Verfügung. Die Parkplatzpreise starten bei € 19.500.



Ergreifen Sie jetzt die Gelegenheit, Teil dieser exklusiven Gemeinschaft zu werden und sichern Sie sich Ihren persönlichen Rückzugsort in dieser bel(i)ebten Stadt!



Lage



Mitten im lebendigen Zentrum von Eisenstadt gelegen, umgeben von historischen Schätzen wie dem Domplatz und dem Schlosspark, bietet dieses Wohnhaus eine einzigartige Kombination aus urbanem Lifestyle und traditionellem Charme. Die zentrale Lage ermöglicht kurze Wege zu Restaurants, Cafés und Geschäften in der belebten Fußgängerzone. Die Nachbarschaft besticht durch ihre Vielfalt und bietet genügend Grünflächen zum Entspannen. Erleben Sie die kulturelle Vielfalt und das lebendige Treiben der Stadt direkt vor Ihrer Haustür. Genießen Sie die authentische Atmosphäre von Eisenstadt und entdecken Sie die versteckten Schätze dieser historischen Stadt.



Willkommen in Ihrem neuen Zuhause im Herzen von Eisenstadt!

Diese Wohnung ist bis 31.12.2025 vermietet.



Top 7, 8 und 9 kann man jederzeit besichtigen.


Wir weisen darauf hin, dass zwischen dem Vermittler und dem zu vermittelnden Dritten ein familiäres oder wirtschaftliches Naheverhältnis besteht.


Der Vermittler ist als Doppelmakler tätig.

Infrastruktur / Entfernungen

Gesundheit
Arzt <250m
Apotheke <250m
Klinik <7.500m
Krankenhaus <1.000m

Kinder & Schulen
Schule <250m
Kindergarten <500m
Universität <1.250m
Höhere Schule <750m

Nahversorgung
Supermarkt <250m
Bäckerei <250m
Einkaufszentrum <1.250m

Sonstige
Bank <250m
Geldautomat <250m
Post <250m
Polizei <500m

Verkehr
Bus <250m
Autobahnanschluss <2.500m
Bahnhof <750m

Angaben Entfernung Luftlinie / Quelle: OpenStreetMap

Eckdaten Objektnr. 8537

Art: Wohnung - Terrassenwohnung
Land: Österreich
Baujahr: 2002
Zustand: Gepflegt
Alter: Neubau
Kaufpreis: 239.000,00
Betriebskosten: 143,70 €
MwSt Gesamt: 14,37 €
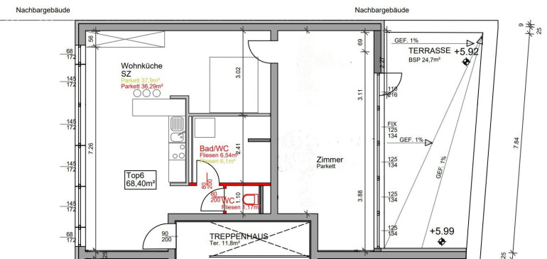
Wohnfläche: 68,40 m²
Zimmer: 2
Bäder: 1
WC: 1
Terrassen: 1
Heizwärmebedarf:  C  78,70 kWh/m²a
fGEE:  D  2,18
Nebenkostenübersicht Kauf Immobilie merken Exposé

Ausstattung

Wohnküche / offene Küche, Dusche, Kabel/Satelliten-TV


Immobilie anfragen


Ihre persönliche Beratung

Eszter Virasztó

WERTIMMOBILIEN Consulting KG

T +43 676 8 50 60 8 703