Lichtdurchflutete Architektenvilla mit Fernblick am Fuße des Wolfersbergs

Haus - Einfamilienhaus, 1140 Wien


Wolfersberg

Beschreibung der Immobilie

Lichtdurchflutete Architektenvilla mit Fernblick am Fuße des Wolfersbergs

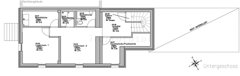
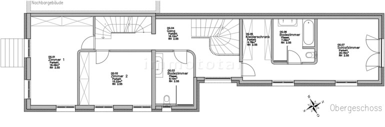
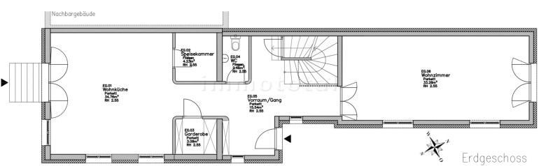
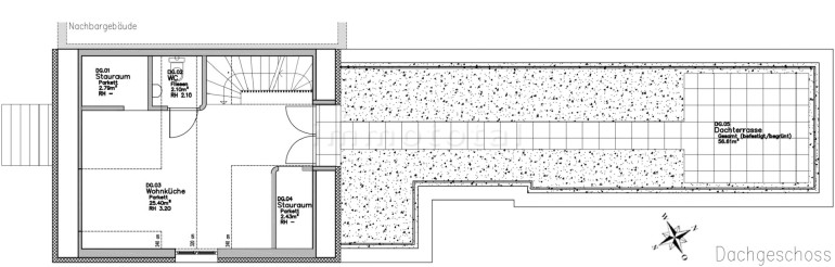
Am Fuße des Wolfersberges, situiert in einer traumhaften Mikrolage mit Fernblick auf den Kordon und den Wolfersberg, wurde eine architektonische Besonderheit auf vier Ebenen mit ~280 m² Nutzfläche geschaffen.



Die großzügigen Glasflächen und das offene Raumkonzept lassen die Villa den ganzen Tag über von hellem Tageslicht durchströmen. Diese einzigartige Liegenschaft bietet drei Terrassen (Vorgarten-, Garten- und Dachterrasse), einen Garten mit Poolvorbereitung (alle Anschlüsse in den Technikraum verlegt) und eine 25 m2 große Garage mit E-Ladeanschluss. Die Villa beeindruckt mit zwei vorbereiteten Küchen sowie einer exklusiven Mastersuite. Diese ist gekonnt abgeschottet und verfügt über eine Walk-In-Garderobe und ein ensuite Wannenbad. Insgesamt verfügt die Liegenschaft über drei Badezimmer und zwei separate WCs. 



Den Ursprung des Projektes bildet das 100 Jahre alte Siedlungshaus von Architekt Ernst Egli, welches von Grund auf renoviert und in harmonischer Erweiterung um einen Zubau wieder zum Leben erweckt wurde. Der Bestand wurde fast zur Gänze komplett neu aufgebaut. Die südseitigen und nordseitigen Wände (EG und OG) wurden komplett entfernt und erneuert, der bestehende Dachstuhl (DG) wurde entfernt und komplett neu aufgebaut. Die ostseitige Wand (EG und OG) wurde saniert und mit Einblasdämmung auf den aktuellen Stand der Technik gehoben. Das Bestandsfundament wurde abgegraben und eine neue gedämmte Fundamentplatte wurde gegossen. Die Kellerwände wurden umseitig ausgegraben, gedämmt und abgedichtet. Im Bereich des Nachbarhauses (westseitig) wurde eine Vorsatzschale mit Hinterlüftung hergestellt.

 



360°-GRAD TOUR: Besichtigen Sie diese traumhafte Liegenschaft mittels einer » virtuellen 360°-Tour auf unserer Website.

 



AUSSTATTUNG:



  • KAVALA Quarzit in den Aussenbereichen und Terrassen
  • STARKL Pflanzen sorgen für intensive Begrünung (Rasen, Stauden, Gräser und Bäume) mit 6 Bewässerungspunkten auf dem Grundstück
  • JABLOTRON Alarmanlage mit Bewegungsmeldern, integrierten Kontakten an sämtlichen Fenstern und Türen und 2 Innenstellen
  • BUDERUS Luft-Wärmepumpe für Fussbodenheizung und Warmwasser (jährlicher Wartungsvertag) sowie 300L Speicher
  • Zentral gesteuerte Fussbodenheizung in jedem Geschoss und Raum
  • BILDAU & BUSSMANN Holz-Alu Fenster mit 3-fach Verglasung und versteckten Raffstorekästen innerhalb der WDVS
  • Elektrisch steuerbare Beschattung im gesamten Haus
  • Raumhohe Innentüren im gesamten Haus
  • CASALGRANDE PADANA Feinsteinzeug in Badezimmern, Nassräumen und WCs (raumhoch)
  • DORNBRACHT META Armaturen in Badezimmern und WCs
  • PROGETTO BAGNO und ALAPE Keramiken in Badezimmern und WCs
  • KARTELL BY LAUFEN Wandtiefspül WCs
  • Alle Badezimmer verfügen über Walk-In Duschen
  • WEITZER Fischgrätparkett in Doppelstabverlegung und Schweizer Leiste
  • CAT 7 Lanverkabelung im gesamten Haus
  • GIRA E2 Schalterserie weiß
  • NIKO Videogegensprechanlage
  • JUICE CHARGER E-Ladestation in Garage mit 2 RFID Karten
  • PLATEK Aussen- und Gartenbeleuchtung
  • Poolvorbereitung mit sämtlichen Anschlüssen im Technikraum
  • Photovoltaik – Verkabelung bis zum Dach bereits vorbereitet
  • Hauptküche und Teeküche vorbereitet (GS, Starkstrom, Warm- und Kaltwasser)



BAUJAHR:
Fertigstellung nach Generalsanierung und Zubau: 2024

Bestandsgebäude: 1922



ÖFFENTL. VERKEHRSANBINDUNG: 
Bus 52A (Haltestelle in ca. 120 m), 52B, 43B

Lokalbahnhof Wolf in der Au, (ca. 1,8 km)

U-Bahn Hütteldorf (ca. 2,5 km)



INFRASTRUKTUR:
Gastronomie, Kinderbetreuung und Schulen, ärztliche Versorgung und Einkaufsmöglichkeiten in naher Umgebung.  Ein SPAR-Markt ist in nur 7 Gehminuten zu erreichen,



BEZUG:
Ab sofort



MÖBLIERUNG:
unmöbliert

 

Infrastruktur / Entfernungen

Gesundheit
Arzt <2.000m
Apotheke <1.500m
Klinik <3.000m
Krankenhaus <2.000m

Kinder & Schulen
Schule <1.000m
Kindergarten <500m
Universität <1.000m
Höhere Schule <5.500m

Nahversorgung
Supermarkt <500m
Bäckerei <2.000m
Einkaufszentrum <2.500m

Sonstige
Geldautomat <1.500m
Bank <1.500m
Post <2.500m
Polizei <2.000m

Verkehr
Bus <500m
U-Bahn <2.500m
Straßenbahn <1.500m
Bahnhof <1.500m
Autobahnanschluss <2.500m

Angaben Entfernung Luftlinie / Quelle: OpenStreetMap

Eckdaten Objektnr. 881

Art: Haus - Einfamilienhaus
Land: Österreich
Zustand: Erstbezug
Kaufpreis: 1.950.000,00
Wohnfläche: 230,00 m²
Nutzfläche: 280,00 m²
Grundstücksfl.: 480,00 m²
Zimmer: 6
Bäder: 3
WC: 5
Terrassen: 3
Heizwärmebedarf: 37,10 kWh/m²a
fGEE:  A+  0,68
Nebenkostenübersicht Kauf Immobilie merken Exposé

Ausstattung

Steinboden, Parkett, Fußbodenheizung, Ostbalkon, Bad mit Fenster, Badewanne, Dusche, Garage, Alarmanlage


Immobilie anfragen


Ihre persönliche Beratung

IMMOTOTAL Immobilientreuhand GmbH

Mag. Michael Spiess

IMMOTOTAL Immobilientreuhand GmbH

T +43 664 4118888

F +43 1 8863388