Günstige Gelegenheit: Eigentumswohnung in grüner Lage!

Wohnung , 8793 Trofaiach , Glögglhofgasse 23


Beschreibung der Immobilie

Günstige Gelegenheit: Eigentumswohnung in grüner Lage!

Trofaiach / Glögglhofgasse 23 / Top 3



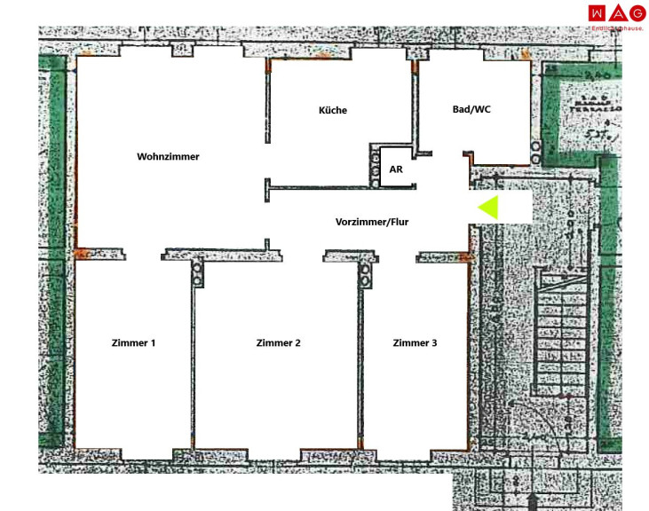
Angeboten wird eine großzügige, leistbare und gut aufgeteilte Eigentumswohnung in schöner Grünlage mit vier Zimmern auf rund 73m² großer Wohnfläche! 



Die Wohnung befindet sich in einem sanierungsbedürftigen Zustand, bietet aber eine sehr gute Ausgangsbasis.



Die Wohnfläche teilt sich wie folgt auf: 



  • Vorzimmer inkl. Abstellraum
  • Küche
  • Wohnzimmer
  • 3 Schlafräume/Zimmer
  • Badezimmer mit Dusche, Tageslichtfenster und WC




Die Wohnung befindet sich in einer kleinen Eigentümergemeinschaft mit nur 12 Wohneinheiten. Der Wohnung ist ein Kellerabteil mit rund 10,5m² und ein Dachbodenabteil mit rund 16,5m² zugeordnet. Auf Wunsch kann optional ein Garten oder auch ein Kfz-Abstellplatz angemietet werden.



  • Preiswerte/leistbare Eigentumswohnung
  • Niedrige Nebenkosten
  • Provisionsfrei
  • Großzügiger Grundriss mit 4 Zimmern
  • Günstige Anmietung von einem Garten möglich
  • Schöne zentrumsnahe Lage
  • Warmwasseraufbereitung mit Boiler
  • Heizung mit Fernwärme


Provisionsfreier Kaufpreis : € 74.900,- exkl. Nebenkosten.



Monatliche Betriebskosten inkl. USt.: € 149,71                              

Monatliche Verwaltungskosten inkl. USt.: € 33,76

Monatliche Instandhaltungsrücklage € 77,49                                                                                                                                                                                                   



Einmalige Kaufnebenkosten: Gesetzliche Gebühren, Vertragserrichtungskosten (€ 2.160,00) und Verwaltungskosten bzw. die Kosten des Treuhänders.



Lage: Die Wohnung befindet sich in einer hübschen, ruhigen Siedlung mit weitläufigen Grünanlagen unweit vom Stadtzentrum Trofaiach mit zahlreichen Einkaufsmöglichkeiten und Freizeitmöglichkeiten.                        

Sie sind an weiteren Wohnungs- bzw. Gewerbeangeboten interessiert? Ein vielfältiges Angebot finden Sie auf unserer Website.

Zur WAG-Immobiliensuche: SUCHE

Zur WAG-Wohnungsanmeldung: Wohnungsanmeldung

Gerne beraten wir Sie persönlich über unser vielfältiges Angebot, rufen Sie uns einfach an! Und das natürlich ohne Vermittlungsgebühren und provisionsfrei!

Angaben sind ohne Gewähr auf Richtigkeit und Vollständigkeit. Druckfehler vorbehalten.

Infrastruktur / Entfernungen

Gesundheit
Arzt <250m
Apotheke <500m
Krankenhaus <8.350m

Kinder & Schulen
Schule <375m
Universität <8.375m
Kindergarten <700m
Höhere Schule <8.500m

Nahversorgung
Supermarkt <450m
Bäckerei <650m
Einkaufszentrum <8.825m

Sonstige
Geldautomat <525m
Bank <525m
Post <575m
Polizei <650m

Verkehr
Bus <125m
Autobahnanschluss <6.875m
Bahnhof <6.200m
Flughafen <6.350m

Angaben Entfernung Luftlinie / Quelle: OpenStreetMap

Eckdaten Objektnr. 6650/27699

Art: Wohnung
Land: Österreich
Baujahr: 1943
Zustand: Sanierungsbeduerftig
Kaufpreis: 74.900,00
Betriebskosten: 166,79 €
MwSt Gesamt: 16,68 €
Wohnfläche: 72,94 m²
Zimmer: 4
Bäder: 1
Keller: 10,76 m²
Heizwärmebedarf:  C  87,80 kWh/m²a
fGEE:  C  1,33
Nebenkostenübersicht Kauf Immobilie merken Exposé

Ausstattung

Fernwärme, Bad mit Fenster, Dusche, Kabel/Satelliten-TV


Immobilie anfragen


Ihre persönliche Beratung

Team WAG Hochsteiermark

WAG Wohnungsanlagen GmbH

T +43 50 3387688

H +43 664 9672157