Gekühltes Büro nähe Karlsplatz und Naschmarkt
Büro / Praxis
- Bürofläche,
1040
Wien
Beschreibung der Immobilie
Gekühltes Büro nähe Karlsplatz und Naschmarkt
BESCHREIBUNGIn der Operngasse in unmittelbarer Nähe zum 1. Bezirk befindet sich das OC 4 Bürohaus an der prominenten Adresse Operngasse 17-21. Die großzügige Eingangshalle mit Lift-Lobby schafft eine eindrucksvolle Atmosphäre. In unmittelbarer Nähe befindet sich weiters die WIPARK-Garage unterhalb der TU.
VERFÜGBARKEIT
ab sofort
VERFÜGBARE MIETFLÄCHEN
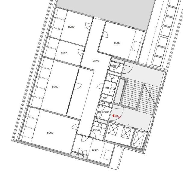
9.OG - Top 9.3 219 m² € 15,00 ab sofort
Betriebskosten € 4,12 /m² inkl. Heizung & Kühlung
Stellplätze: WIPARK-Garage in unmittelbarer Nähe
AUSSTATTUNG
Öffenbare Fenster
Sonnenschutz
Beleuchtungskörper
Doppelboden
Zutrittskontrolle bzw. Portier
Heizung & Kühlung mit FanCoils
TECHNISCHE DETAILS
Neubau
Energiekennwerte:
Energieklasse: C
Heizwärmebedarf 60,00 kWh/m²a
LAGE UND VERKEHRSANBINDUNG
öffentlicher Verkehr:
U-Bahn: U1, U2, U4
Schnellbahn: -
Straßenbahn: 1, 2, D, WLB
Bus: 59A
INFRASTRUKTUR
Die Infrastruktur ist durch den benachbarten Naschmarkt ausgezeichnet.
KAUTION
6 Bruttomonatsmieten
PROVISION
Im Falle eines Vertragsabschlusses beträgt unser Honorar lt. Maklerverordnung für Immobilienmakler, BGBI.262 und 297/1996, 3 Bruttomonatsmieten zzgl. 20 % Ust. Weiters möchten wir auf unsere allgemeinen Geschäftsbedingungen und den ausschließlichen Gerichtsstand Wien, Innere Stadt verweisen.
Alle Preisangaben verstehen sich pro Monat, zzgl. der gesetzlichen Ust. und Betriebskosten.
Weitere Objekte finden Sie auch auf unserer Website http://www.colliers.com/
Eckdaten Objektnr. 337/05487
| Art: | Büro / Praxis - Bürofläche |
| Land: | Österreich |
| Baujahr: | 1978 |
| Alter: | Neubau |
| Gesamtmiete: | 5.016,48 € |
| Kaltmiete (netto): | 3.279,60 € |
| Miete / m²: | 15,00 € |
| Betriebskosten: | 675,60 € |
| Heizkosten: | 225,20 € |
| MwSt Gesamt: | 836,08 € |
| Nutzfläche: | 218,64 m² |
| Zimmer: | 6 |
| WC: | 2 |
| Heizwärmebedarf: | C 60,00 kWh/m²a |
Ausstattung
Fernwärme, Zentralheizung, Personenaufzug
Ihre persönliche Beratung
Dieser Makler ist ein offizielles Mitglied des IR – ir.at Mehr Erfahren

