ATTRAKTIVE GESCHÄFTSFLÄCHE - MIT FLEXIBLEN GESTALTUNGSMÖGLICHKEITEN
Einzelhandel
- Ladenlokal,
1210
Wien
Außenansicht
Innenansicht
Innenansicht 1
Innenansicht 10
Innenansicht 11
Innenansicht 13
Innenansicht 15
Innenansicht 16
Innenansicht 2
Innenansicht 3
Innenansicht 4
Innenansicht 5
Innenansicht 6
Innenansicht 7
Innenansicht 8
Innenansicht 9
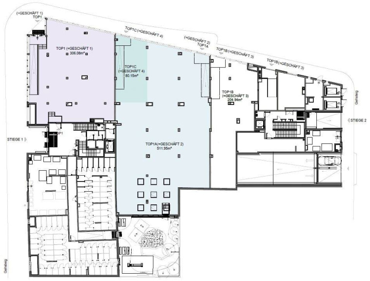
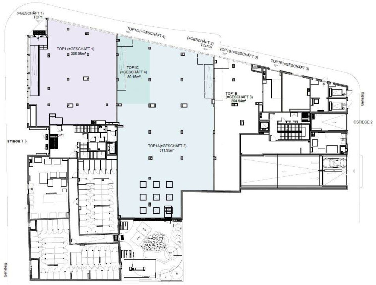
Grundriss
Außenansicht 2
Innenansicht
Innenansicht 1
Innenansicht 10
Innenansicht 12
Innenansicht 4
Innenansicht 5
Innenansicht 7
Innenansicht 7 GL2
Innenansicht 8
Innenansicht 9
Lageplan
Übersicht
Übersicht
Beschreibung der Immobilie
ATTRAKTIVE GESCHÄFTSFLÄCHE - MIT FLEXIBLEN GESTALTUNGSMÖGLICHKEITEN
ObjektbeschreibungDie Geschäftsflächen werden belagsfertig angeboten und können in Absprache mit dem Eigentümer an die Bedürfnisse der zukünftigen Mieter angepasst werden. Die Geschäftsflächen können nach Vereinbarung erweitert werden eine Zusammenlegung mit benachbarten Geschäftseinheiten ist möglich. Die einzelnen Geschäftseinheiten befinden sich in ausgezeichneter und gut sichtbarer Verkehrslage im 21. Bezirk. In der hauseigenen Tiefgarage können Stellplätze je nach Verfügbarkeit angemietet werden.
Diese Räumlichkeiten können sowohl einzeln als auch unabhängig voneinander angemietet werden, um Ihren individuellen Bedürfnissen gerecht zu werden.
- Geschäftslokal 1: 306,08 m²
- Geschäftslokal 2: 592,10 m²
- Gesamt: 898,18 m²
Anbindung
Die Straßenbahnlinien 30 und 31 liegen direkt vor dem Haus. In der Frauenstiftgasse finden Sie die Buslinie 31A, mit der Sie rasch zur Siemensstraße und zum Kagraner Platz gelangen. Von Floridsdorf aus kommen Sie sehr zügig nach Wien Mitte, zum Hauptbahnhof und zum Praterstern (U1, U2). Mit der U1 sind Sie dann über 2 Stationen in der Wiener Innenstadt. Die Schnellbahnstation "Wien Brünner Straße" erreichen Sie in ca. 15 Gehminuten, beziehungsweise über eine Station mit der Straßenbahn.
- Straßenbahn 30, 31
- Buslinie 31A in der Frauenstiftgasse
- Schnellbahnstation " Wien Brünner Straße"
Kosten
Nettomiete/m²/Monat: EUR 12,50
Betriebskosten/m²/Monat: EUR 1,80
Kaution: 3 Monatsmieten
Mietvertragsvergebührung (abhängig von der Befristungsdauer)
Details
Verfügbarkeit ab: sofort
Zustand: EdelrohbauMietpreis netto p.M/pro m²: 12,50 €
Betriebskosten: 1,8 € pro m²
Befristung: max. 10 Jahre, eine Verlängerungsoption ist möglich
Provision: 3 BMM zzgl. 20% USt.
Eckdaten Objektnr. 141/76915
| Art: | Einzelhandel - Ladenlokal |
| Land: | Österreich |
| Gesamtmiete: | 8.754,35 € |
| Kaltmiete (netto): | 6.399,38 € |
| Betriebskosten: | 895,91 € |
| MwSt Gesamt: | 1.459,06 € |
| Nutzfläche: | 592,10 m² |
| Heizwärmebedarf: | A 21,20 kWh/m²a |
| fGEE: | B 0,89 |
Ihre persönliche Beratung
Dieser Makler ist ein offizielles Mitglied des IR – ir.at Mehr Erfahren
