Kleine Wohnung mit Loggia und Befristungsabschlag

Wohnung , 3812 Groß-Siegharts , Grabenfeldstraße 1


Groß-Siegharts ist eine Stadtgemeinde mit ca. 2721 Einwohnern im Bezirk Waidhofen an der Thaya in Niederösterreich.

Beschreibung der Immobilie

Kleine Wohnung mit Loggia und Befristungsabschlag

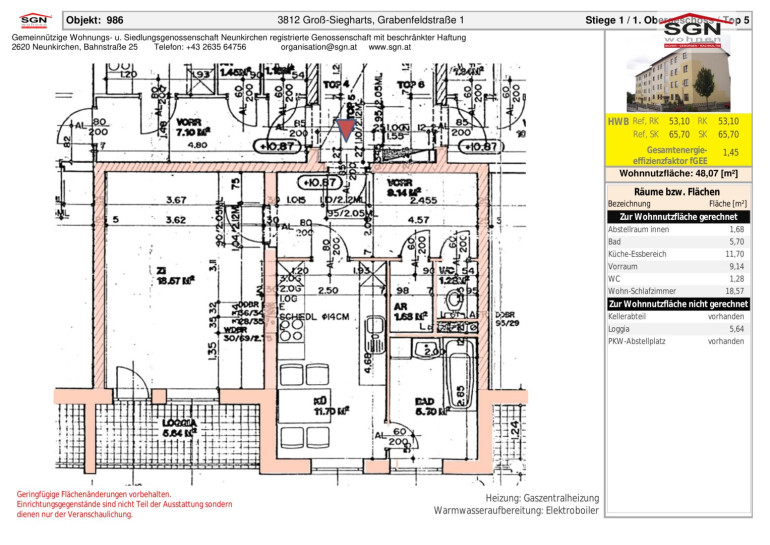
Die Wohnung befindet sich im 1. Stock der Wohnhausanlage und bietet auf 48,07m² Wohnfläche 1 schönes Wohnzimmer/Schlafzimmer mit Ausgang auf die Loggia, 1 großzügige Wohnküche, ein Badezimmer mit Fenster, einen praktischen Abstellraum, 1 separates WC und ein zentrale Vorzimmer.



Die Loggia selbst mit knapp 6m² rundet diese nette Wohnung ab.



Weiters ist der Wohnung ein Kellerabteil und ein KFZ-Abstellplatz zugeordnet.





Ein paar Eckdaten:



Gas-Zentral Heizung und Warmwasseraufbereitung, SAT-Anlage, Antennenanschluss, Entkalkungsanlage, ein Kinderspielplatz.





Für Fragen stehen wir selbstverständlich gerne zu Ihrer Verfügung.


Der Immobilienmakler erklärt, dass er – entgegen dem in der Immobilienwirtschaft üblichen Geschäftsgebrauch des Doppelmaklers – einseitig nur für den Vermieter tätig ist.

Infrastruktur / Entfernungen

Gesundheit
Arzt <300m
Apotheke <450m
Krankenhaus <8.700m
Klinik <8.925m

Kinder & Schulen
Schule <525m
Kindergarten <650m

Nahversorgung
Supermarkt <400m
Bäckerei <375m
Einkaufszentrum <9.575m

Sonstige
Bank <350m
Geldautomat <400m
Polizei <400m
Post <7.450m

Verkehr
Bus <325m
Bahnhof <6.900m

Angaben Entfernung Luftlinie / Quelle: OpenStreetMap

Eckdaten Objektnr. 9860000100005

Art: Wohnung
Land: Österreich
Baujahr: 1995
Zustand: Gepflegt
Alter: Neubau
Gesamtmiete: 363,58
Kaltmiete (netto): 150,07 €
Kaltmiete: 261,31 €
Betriebskosten: 111,24 €
Heizkosten: 63,45 €
MwSt Gesamt: 38,82 €
Wohnfläche: 48,07 m²
Zimmer: 1
Bäder: 1
WC: 1
Heizwärmebedarf: 65,70 kWh/m²a
fGEE: 1,45
Nebenkostenübersicht Miete Immobilie merken Exposé

Ausstattung

Fliesen, Gas, Zentralheizung, Badewanne, DV-Verkabelung, Kabel/Satelliten-TV, Parkplatz


Immobilie anfragen


Ihre persönliche Beratung

SGN Gemeinnützige Wohnungs- u. Siedlungsgenossenschaft Neunkirchen reg.Gen.m.b.H.

Rudolf Georg Kochesser, MA

SGN Gemeinnützige Wohnungs- u. Siedlungsgenossenschaft Neunkirchen reg.Gen.m.b.H.

T +43 2635 64756 33

H +43 664 8347374