TERRASSENMIETE IN TOPLAGE VON GRINZING

Wohnung , 1190 Wien


Beschreibung der Immobilie

TERRASSENMIETE IN TOPLAGE VON GRINZING

Zur befristeten Vermietung gelangt eine gut geschnittene und hochwertig ausgestattete TERRASSENWOHNUNG in bester Lage von Grinzing. Das moderne Gebäude mit nur 3 Wohneinheiten wurde 2022 energieeffizient gebaut und verfügt über eine Luftwärmepumpe Zentralheizung. Über einen barrierefreien Eingang gelangt man in ein helles Entrée und den Zugang zum Lift, im Keller befindet sich neben der Tiefgarage auch ein Kinderwagen- und Fahrradabstellraum.



VERFÜGBAR AB JULI 2026





In wenigen Minuten zu Fuß erreicht man das Zentrum von Grinzing mit zahlreichen Einkaufsmöglichkeiten, Restaurants sowie Schulen und Kindergärten. Mit der Straßenbahnlinie 38 gelangt man bequem ins Stadtzentrum. 



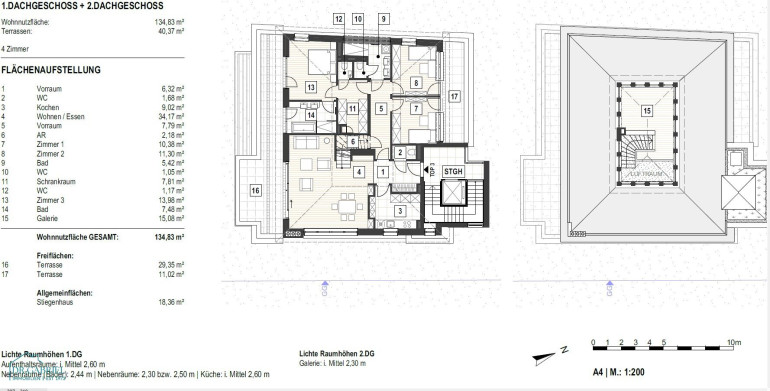
RAUMAUFTEILUNG:



1. EBENE: Entrée, Wohn-Esszimmer mit Ausgang auf die Terrasse, Küche, drei Schlafzimmer (alle mit Ausgang auf eine Terrasse), begehbare Garderobe, zwei Bäder (eines davon mit WC, eines mit separatem WC), Gäste-WC, Abstellraum



2. EBENE: Galerie (ca. 15m²), die sich ideal als Home Office nutzen lässt



AUSSTATTUNG:



  • Parkettböden & Steinfliesen
  • komplett ausgestattete Küche (MIELE Geräte)
  • Fußbodenheizung (Luftwärmepumpe/Zentralheizung)
  • Klimaanlage
  • Alarmanlage
  • elektrische Außenjalousien
  • Sonnenmarkise
  • Heizungsakonto mtl. € 121,35 inkl. 20% USt
  • Warmwasserakonto mtl. € 111,23 inkl.10% USt
  • Kaltwasserakonto mtl. € 123,75 inkl.10 % USt


Ein Garagenstellplatz ist verpflichtend mit anzumieten, ein Zweiter kann optional angemietet werden.

Die Miete für einen herkömmlichen Stellplatz beträgt 200,00 € zzgl. 25,00 € BK plus 20 % USt.

Die Miete für einen Stellplatz mit einer E‐Ladestation beträgt 235,00 € zzgl. 25,00 € BK plus 20 % USt.



BITTE ZU BEACHTEN:



FÜR DIE ANMIETUNG DIESER WOHNUNG IST DIE VORLAGE EINES MONATLICHEN NETTOHAUSHALTSEINKOMMENS IN ÖSTERREICH IN HÖHE VON MINDESTENS DER DREIFACHEN GESAMTMIETE ERFORDERLICH!



-------------------------------------------------------------------------------------------------------------------------------------------------------------------



ROOFTOP APARTMENT IN BEST LOCATION OF GRINZING | 3 BEDROOMS | 2 BATHROOMS | INHOUSE PARKING


Der Immobilienmakler erklärt, dass er – entgegen dem in der Immobilienwirtschaft üblichen Geschäftsgebrauch des Doppelmaklers – einseitig nur für den Vermieter tätig ist.

Infrastruktur / Entfernungen

Gesundheit
Arzt <500m
Apotheke <500m
Klinik <1.500m
Krankenhaus <1.500m

Kinder & Schulen
Schule <500m
Kindergarten <500m
Universität <1.500m
Höhere Schule <1.500m

Nahversorgung
Supermarkt <500m
Bäckerei <500m
Einkaufszentrum <2.500m

Sonstige
Geldautomat <1.500m
Bank <500m
Post <500m
Polizei <1.500m

Verkehr
Bus <500m
U-Bahn <2.500m
Straßenbahn <500m
Bahnhof <1.500m
Autobahnanschluss <2.500m

Angaben Entfernung Luftlinie / Quelle: OpenStreetMap

Eckdaten Objektnr. 29065

Art: Wohnung
Land: Österreich
Baujahr: 2022
Zustand: Neuwertig
Alter: Neubau
Gesamtmiete: 4.100,00
Kaltmiete (netto): 3.036,14 €
Kaltmiete: 3.727,28 €
Betriebskosten: 691,14 €
MwSt Gesamt: 372,72 €
Wohnfläche: 134,83 m²
Zimmer: 4
Bäder: 2
WC: 3
Terrassen: 2
Keller: 6,28 m²
Heizwärmebedarf:  B  39,90 kWh/m²a
fGEE:  A  0,73
Nebenkostenübersicht Miete Immobilie merken Exposé

Ausstattung

Fliesen, Parkett, Fußbodenheizung, Wohnküche / offene Küche, Badewanne, Dusche, Kabel/Satelliten-TV, Garage


Immobilie anfragen


Ihre persönliche Beratung

Dr. Alexandra Gabriel Realitätenvermittlungsgesellschaft m.b.H.

Office Team

Dr. Alexandra Gabriel Realitätenvermittlungsgesellschaft m.b.H.

T +43 1 533 10 96