Top Saniertes & neu möbliertes Apartmenthaus mit Garten nähe U4

Zinshaus Renditeobjekt , 1140 Wien , Linzer Straße


Naherholungsgebiet Wienerwald, nähe Ferdinand-Wolf-Park, nähe U4-Hütteldorf, an der Ecke Uttendorfgasse, direkte Anbindung an den Wienfluss Weg und zur Lindheimgasse, Buslinien direkt zur U4:

Beschreibung der Immobilie

Top Saniertes & neu möbliertes Apartmenthaus mit Garten nähe U4

Voll möbliertes Apartmenthaus (Tischlermöbel) im Alleineigentum in der Linzerstraße mit Garten!



Zum Verkauf steht ein ca.1930 errichtetes Wohnhaus mit Keller und Garten nahe dem Ferdinand-Wolf-Park/ Europahaus Wien.

Im Haus befinden sich 6 Wohneinheiten, wobei zwei Wohnungen der Kategorie A und C unbefristet vermietet sind.



Eine ca 55m² Wohnung im Untergeschoss mit Zugang zum Garten, eine ca 26m² Einzimmerwohnung und zwei ca. 45m² Wohnungen im ersten Stock wurden gerade saniert und möbliert, diese werden als Kurzzeitapartments via Booking.com und airbnb angeboten, sie wurden auch bei der Baubehörde als zur Apartmentwidmung eingereicht.




Gute Verkehrsanbindung: Autobus (49A, 50 A, 450, 451), 7 Autofahrminuten zum Auhof Center bzw. Westeinfahrt.

Naherholungsgebiet: Wienerwald, Ferdinand-Wolf-Park, direkte Anbindung an den Wienfluss Weg für Fahrradfahrer.



Eckdaten:
Baugenehmigung/Baujahr: Genehmigt laut Bescheid ca. 1930.

Grundstücksgröße: ca. 737 m² - laut Grundbuch - davon 133 m2 verbaut!

Flächenwidmung: Laut Flächenwidmungsplan auf wien.at: Bauklasse WII - 10,5 m
Bauhöhe, ogk (offen, da Nachbargrundstück auch offen bebaut ist);

Keine Schutzzone
Wohnfläche aktuell ca. 297 m2

Nutzfläche: ca. 330 m²



Im Falle eines Abbruchs des bestehenden Gebäudes wäre eine Neubaunutzfläche von ca.942 m² möglich, die gewichtete Fläche beträgt 992,39 m².



Es wäre ebenso möglich auf den Bestand in die Höhe und in die Breite zu bauen, dadurch könnte eine Gesamtfläche von 722 m² entstehen!





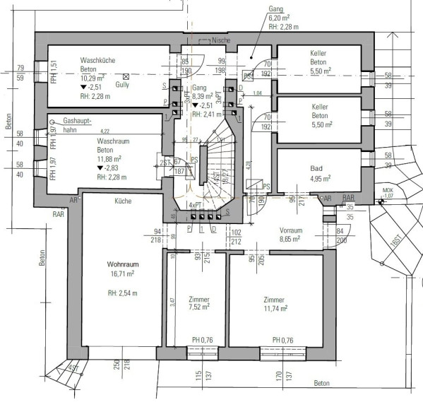
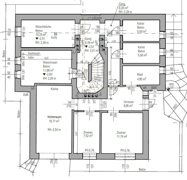
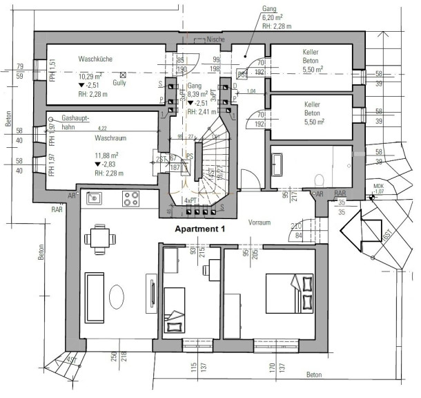
UG Top 1: Gartenseitige Wohnung mit Terrasse zum Garten ca. 55 m2 Apartment 1



Apartmentvermietung



Raumaufteilung: Vorzimmer, Wohnzimmer mit Küche, Schlafzimmer, Kinderzimmer, Bad mit Dusche und WC.

 



EG - Top 1a: Erdgeschosswohnung ca. 26 m², Apartment 2
Apartmentvermietung

Raumaufteilung: Wohn- Schlafraum mit Küchenzeile, Bad mit Dusche und WC.




EG - Top 2: Wohnung 65 m², 

unbefristet vermietet

Raumaufteilung: 3 Zimmer, Küche, separates WC, Badezimmer, Kellerabteil; Gasetagenheizung.




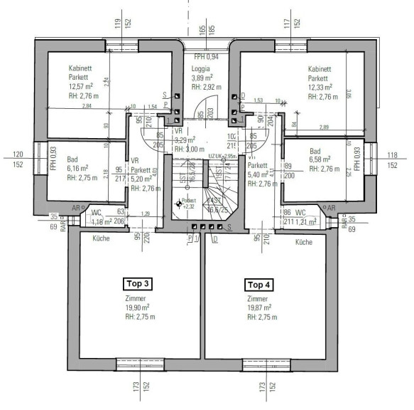
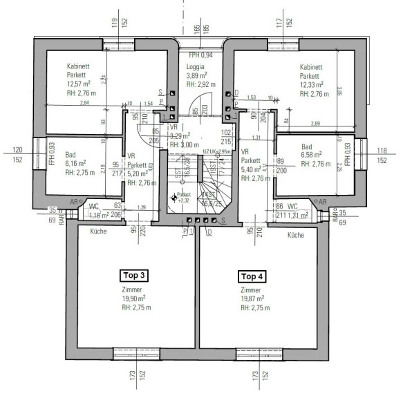
1.Stock - Top 3: Wohnung 45 m², Apartment 4
Apartmentvermietung

Raumaufteilung: Schlafzimmer, Wohnraum mit Küche, Bad mit Dusche und WC, Vorraum.



1.Stock - Top 4: Wohnung 45 m², Apartment 5
bestandsfrei - leer

Raumaufteilung: Schlafzimmer, Wohnraum mit Küche, Bad mit Dusche und WC, Vorraum.




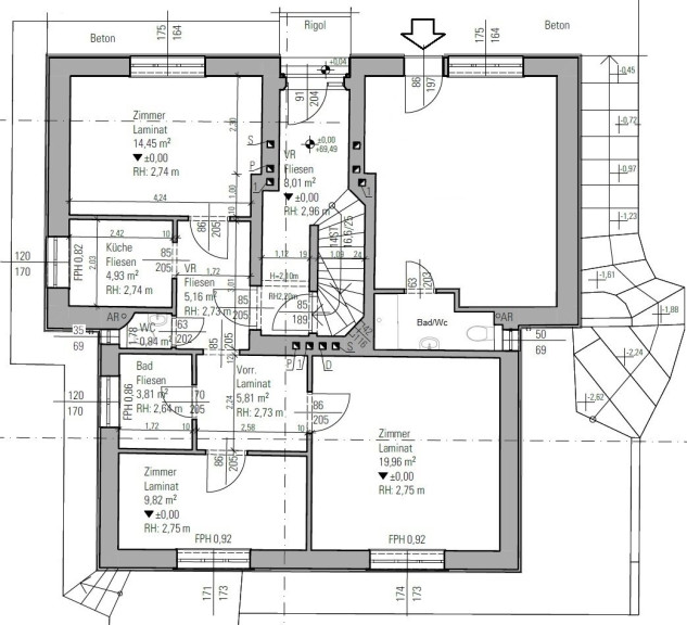
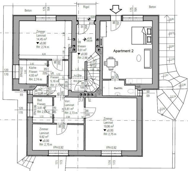
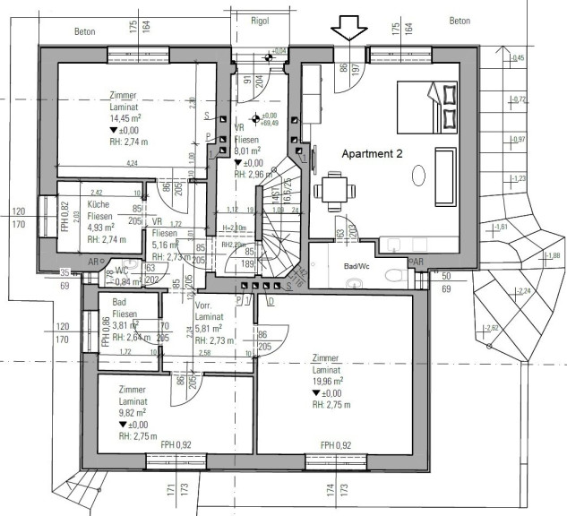
DG - Top 5: Wohnung 64 m², Kat C

Unbefristet vermietet

Raumaufteilung: Vorzimmer, 3 Zimmer, Küche, Badezimmer, WC, Kellerabteil; - Heizung Gasetagenheizung.




Sonstige Flächen: 2 Kellerabteile für die Mieter, 2 Kellerräume, verfliest für Waschmaschinen & Trockner und Garten.  




Der Kaufpreis beträgt 1.295.000,- Euro inklusive der unbefristeten Mietverträge und der Möblierung der Apartments durch einen Tischler.



Info zum Kaufpreis: Der Kaufpreis beinhaltet auch die Möglichkeit des Zubaus und des Ausbaus, bzw eines eventuellen Neubaus und der dadurch entstehenden Flächengewinnung.



Es besteht auch die Möglichkeit die Flächen des Hauses ohne Abbruch zu erweitern, durch Zubauten nach hinten und zur Seite, dadurch kann eine Gesamtfläche von 722 m² entstehen!



Es gibt auch schon einen Kostenvoranschlag für die geplante Photovoltaik Anlage am Dach.



Die Maklerprovision für die Vermittlung der angebotenen Liegenschaft beträgt 3 % des Verkaufspreises + 20% USt.



Kaufnebenkosten:
3,5 % Grunderwerbsteuer

1,1 % Grundbuchseintrag

1,2 % Kaufvertragserrichtung inkl. Ust 

3,6 % Provision inkl. 20 % Ust



Für Informationen und Besichtigungstermine stehe ich Ihnen jederzeit gerne zur Verfügung!



Termine sind auch am Wochenende möglich unter 0664 - 38 17 061, Anton Robert De Icco




Wir weisen darauf hin, dass zwischen dem Vermittler und dem zu vermittelnden Dritten ein familiäres oder wirtschaftliches Naheverhältnis besteht.


Der Vermittler ist als Doppelmakler tätig.

Infrastruktur / Entfernungen

Gesundheit
Arzt <1.000m
Apotheke <250m
Klinik <3.250m
Krankenhaus <1.750m

Kinder & Schulen
Schule <500m
Kindergarten <1.000m
Universität <1.750m
Höhere Schule <5.500m

Nahversorgung
Supermarkt <250m
Bäckerei <1.250m
Einkaufszentrum <2.250m

Sonstige
Geldautomat <750m
Bank <750m
Post <2.250m
Polizei <1.250m

Verkehr
Bus <250m
U-Bahn <1.250m
Straßenbahn <750m
Bahnhof <750m
Autobahnanschluss <2.000m

Angaben Entfernung Luftlinie / Quelle: OpenStreetMap

Eckdaten Objektnr. 119045967

Art: Zinshaus Renditeobjekt
Land: Österreich
Baujahr: 1930
Alter: Altbau
Kaufpreis: 1.295.000,00
Kaufpreis / m²: 3.924,24 €
Wohnfläche: 297,00 m²
Nutzfläche: 330,00 m²
Grundstücksfl.: 737,00 m²
Gesamtfläche: 330,00 m²
Zimmer: 14
Bäder: 6
WC: 6
Terrassen: 1
Heizwärmebedarf:  F  219,00 kWh/m²a
Nebenkostenübersicht Kauf Immobilie merken Exposé

Ausstattung

Parkett, Fliesen, Wohnküche / offene Küche, Südbalkon, Bad mit Fenster, Dusche, Wasch/Trockenraum


Immobilie anfragen


Ihre persönliche Beratung

Anton Robert De Icco

De Icco Immobilien

T +43 664 381 70 61

F +43 (0)1 25 330 338 337