Luxuslage Schafberg: Einmalige Luxus-Maisonette mit Dachterrasse! Weitblick zum Verlieben!

Wohnung - Maisonette, 1180 Wien


Beschreibung der Immobilie

Luxuslage Schafberg: Einmalige Luxus-Maisonette mit Dachterrasse! Weitblick zum Verlieben!

Klicke auf den Video-Link: LINK



Eckdaten



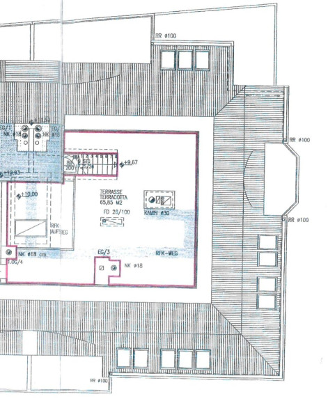
Zum Verkauf gelangt eine ca. 170 m² große 4-Zimmer-Wohnung im 18. Bezirk Wiens.



Zu den Highlights zählen:



  • Die Dachterrasse, welche über eine Treppe erreicht werden kann und von der aus ein wunderschöner Ausblick über Wien geboten wird 
  • Die Balkone, die im gleichen Stockwerk wie die Wohnzimmer liegen.
  • Der begehbare Kleiderschrank, welcher sehr viel Platz bietet
  • Die modern eingerichtete Wohnküche
  • Das stylische Exterieur des Wohngebäudes 
  • Der üppige Lichteinfall durch die großen Fenster
  • Der Grünblick auf die umliegenden Nadelbäume


Zur Grundausstattung gehören:



  • 1 Vorraum
  • 2 Badezimmer
  • 2 WCs
  • 4 Zimmer
  • 1 Küche
  • 4 Terrassen



Lage



Die nächsten Lebensmittelgeschäfte, SPAR oder BILLA, befinden sich jeweils ca. 5 Minuten mit dem Auto entfernt.



Die nächste Bus-Station ist nach 5 Gehminuten erreichbar, die nächste Straßenbahnstation ist 15 Minuten zu Fuß vom Objekt entfernt. 



Die nächste S-Bahn-Station ist in 7 Minuten mit dem Auto erreichbar.




Sollten Sie Fragen haben oder eine Besichtigung wünschen, ist Artjom Zakaryan von ZAKARYAN & PARTNER (www.zakaryan.at) gerne für Sie unter +43 676 496 3419 oder az@zakaryan.at auch am Wochenende erreichbar.




Verbraucherrecht



In Entsprechung des FAGG (Fern- und Auswärtsgeschäfte-Gesetz) und des VRUG (Verbraucherrechte-Richtlinie-Umsetzungsgesetz) ist es uns leider nur mehr möglich Termine nach Erhalt einer schriftlichen Anfrage mit vollständigen Kontaktangaben (Kontaktformular) zu vereinbaren, dies gilt ebenso für die Herausgabe relevanter Informationen wie z.B. der Lage. Sehr gerne sind wir auf diesem Wege bereit, uns um sämtliche Anliegen rasch und kompetent zu kümmern.


Hinweis gemäß Energieausweisvorlagegesetz: Ein Energieausweis wurde vom Eigentümer bzw. Verkäufer, nach unserer Aufklärung über die generell geltende Vorlagepflicht, sowie Aufforderung zu seiner Erstellung noch nicht vorgelegt. Daher gilt zumindest eine dem Alter und der Art des Gebäudes entsprechende Gesamtenergieeffizienz als vereinbart. Wir übernehmen keinerlei Gewähr oder Haftung für die tatsächliche Energieeffizienz der angebotenen Immobilie.

Infrastruktur / Entfernungen

Gesundheit
Arzt <1.000m
Apotheke <1.000m
Klinik <1.500m
Krankenhaus <1.000m

Kinder & Schulen
Schule <1.000m
Kindergarten <1.000m
Universität <2.500m
Höhere Schule <2.500m

Nahversorgung
Supermarkt <1.000m
Bäckerei <1.000m
Einkaufszentrum <2.000m

Sonstige
Geldautomat <1.500m
Bank <2.000m
Post <1.000m
Polizei <2.000m

Verkehr
Bus <500m
Straßenbahn <1.000m
U-Bahn <2.000m
Bahnhof <2.000m
Autobahnanschluss <4.500m

Angaben Entfernung Luftlinie / Quelle: OpenStreetMap

Eckdaten Objektnr. 5883

Art: Wohnung - Maisonette
Land: Österreich
Zustand: Gepflegt
Alter: Neubau
Kaufpreis: 1.799.999,00
Betriebskosten: 420,00 €
Heizkosten: 250,00 €
MwSt Gesamt: 92,00 €
Nutzfläche: 171,37 m²
Zimmer: 4
Bäder: 2
Terrassen: 4
Nebenkostenübersicht Kauf Immobilie merken Exposé

Ausstattung

Fliesen, Parkett, Wohnküche / offene Küche, Personenaufzug, Südbalkon, Badewanne, Dusche


Immobilie anfragen


Ihre persönliche Beratung

ZAKARYAN & PARTNER

Artjom Zakaryan

ZAKARYAN & PARTNER

T +43 676 4963419

H +43 676 9191191