+155m² Geschäftsraum /Büro (TOP 2) in bester zentralen Lage, direkt in Oberpullendorf zu vermieten!

Halle / Lager / Produktion , 7350 Oberpullendorf


Beschreibung der Immobilie

+155m² Geschäftsraum /Büro (TOP 2) in bester zentralen Lage, direkt in Oberpullendorf zu vermieten!

+ 155m² Geschäftsraum /Büro in bester zentralen Lage, direkt in Oberpullendorf zu vermieten! +



 



Gelegen in bester zentraler Lage, nur wenige Meter von jeglichen Einkaufsmöglichkeiten, öffentlichen Verkehrsanbindungen, diversen Restaurants und Bars entfernt.



Neben der optimalen Lage, glänzt dieses Objekt mitunter, durch seine enorm großzügig gestalteten Wohnbereiche. Wohlfühlen garantiert!







Der Geschäftsraum kann je nach Bedarf auf X Jahre, selbstverständlich mit Verlängerungsoption gemietet werden.



Die monatliche Miete beträgt: € 730,-  exkl. Ust





Und die monatlichen Betriebskosten: € 100,-  exkl. Ust





Der Geschäftsraum kann ab sofort bezogen werden.





Für weitere Fragen, oder einen Besichtigungstermin stehe ich Ihnen gerne, auch am Wochenende, zur Verfügung.





Herzliche Grüße,



Paul Kneisz



+43 (0) 660 38 17 517



www.grabner-immobilien.at




Hinweis gemäß Energieausweisvorlagegesetz: Ein Energieausweis wurde vom Eigentümer bzw. Verkäufer, nach unserer Aufklärung über die generell geltende Vorlagepflicht, sowie Aufforderung zu seiner Erstellung noch nicht vorgelegt. Daher gilt zumindest eine dem Alter und der Art des Gebäudes entsprechende Gesamtenergieeffizienz als vereinbart. Wir übernehmen keinerlei Gewähr oder Haftung für die tatsächliche Energieeffizienz der angebotenen Immobilie.

Infrastruktur / Entfernungen

Gesundheit
Arzt <500m
Apotheke <500m
Krankenhaus <1.000m

Kinder & Schulen
Schule <500m
Kindergarten <7.500m

Nahversorgung
Supermarkt <500m
Bäckerei <1.000m
Einkaufszentrum <1.000m

Sonstige
Geldautomat <500m
Bank <500m
Post <1.000m
Polizei <500m

Verkehr
Bus <500m
Bahnhof <1.000m
Autobahnanschluss <3.500m

Angaben Entfernung Luftlinie / Quelle: OpenStreetMap

Eckdaten Objektnr. 7208

Art: Halle / Lager / Produktion
Land: Österreich
Kaltmiete (netto): 700,00 €
Kaltmiete: 800,00 €
Betriebskosten: 100,00 €
MwSt Gesamt: 160,00 €
Nutzfläche: 147,50 m²
Lagerfläche: 87,50 m²
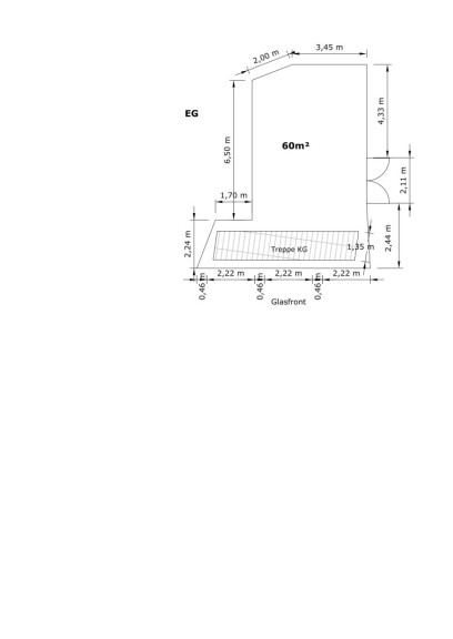
Bürofläche: 60,00 m²
Zimmer: 2
WC: 1
Stellplätze: 1
Keller: 95,00 m²
Nebenkostenübersicht Miete Immobilie merken Exposé

Immobilie anfragen


Ihre persönliche Beratung

Grabner Immobilien

Paul Kneisz

Grabner Immobilien GmbH

T +43 660 38 17 517